防災・危機管理情報


2024年5月8日

木造建築科の令和5年度をフラッシュバック2

第2回
【インテリアデザイナー監修 リノベーション作業編】

今回は、昭和の家がリノベーションされていく様子をお伝えします。

インテリアデザイナー小西講師監修のもと、リノベーション企画、製作について
提案していただきました。

 

  お客様に提案するためのプレゼンテーションボードです。

 

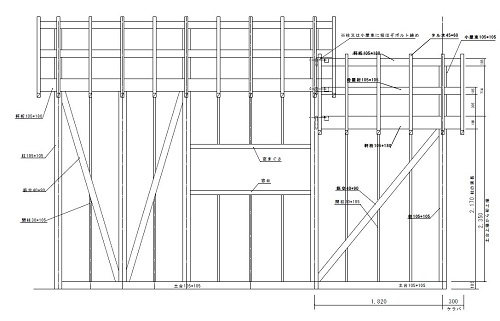
そのプランを基に、増築部分の図面を製作します。

    

  

 

増築する側の部分を解体し、躯体に補強を入れます。
 

増築される部分を製作していきます。

墨付け~刻み、建前までの様子です。
    


建物内の造作作業をしていきます。
    



外壁もプラン通りに仕上げていきます。
  

 

外壁材は手作づくりのオリジナル部材を企画製作しています。
   


内装家具もオリジナルの手づくり家具です。
  


次回は、リノベーションされ完成した姿をご覧いただけます。
お楽しみに!

2024/05/08 in 木造建築科

<2025年11月>
2627282930311
2345678
9101112131415
16171819202122
23242526272829
30123456

最後に本ページの担当課    産業人材育成センター倉吉校
    住所 〒682-0018
             鳥取県倉吉市福庭町二丁目1番地
    電話  0858-26-22470858-26-2247    
    ファクシミリ  0858-26-2248
    E-mail  sangyoujinzai-center@pref.tottori.lg.jp

Copyright(C) 2006~ 鳥取県(Tottori Prefectural Government) All Rights Reserved. 法人番号 7000020310000